back to overview

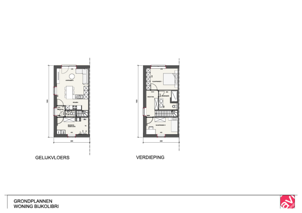
Bijkolibrie

Bijkolibrie main image
Bijkolibrie extra image 1
Bijkolibrie extra image 2
Bijkolibrie extra image 3
Moderne woning met plat dak - HOB
100m2
2
2